0

Stiebel Eltron warmtepompboiler WWK 220

Via de ingebouwde contact ingang is het mogelijk bijvoorbeeld u eigen geproduceerde zonnestroom van uw zonnepanelen te koppelen aan de Warmtepompboiler.
Op voorraad


incl. btw

[korting_exact]

Out of stock

Betaal veilig en eenvoudig met

Betaalopties 123installatiematerialen goewd

Toepassing 

• De warmtepompboiler voor circulatiewerking kan meerdere tappunten op efficiënte wijze voorzien. Dankzij de compacte constructie heeft deze slechts weinig ruimte nodig.

• De afgegeven warmte van andere toestellen in de opstelruimte (bijv. diepvrieskist, droogautomaat, verwarming) wordt gebruikt om het energierendement van de volledige installatie te verhogen.

Comfort 

• De warmtepompboiler voldoet aan de vereisten van hoogwaardige lastprofielen. Hoe hoger het tapprofiel, hoe hoger het warmwatercomfort dat het toestel kan bieden.

• In zuivere warmtepompwerking zijn reeds hoge temperaturen mogelijk om warm water efficiënt en hygiënisch te bereiden.

• Comfortabele bediening dankzij de elektronische regelaar met LC-display, waarop het momenteel beschikbare volume mengwater kan worden afgelezen.

• Zeer stille werking dankzij de akoestische isolatie van de compressor uit de luchtstroom.

• De geïntegreerde gelijkspanningsanode verlaagt de kosten en verhoogt de veiligheid. De veergespannen Rollbond-warmtewisselaar zorgt voor veiligheid en een efficiëntere werking over de volledige levensduur van het toestel.

Combinatiemogelijkheden

•  Via de ingebouwde contact ingang is het mogelijk bijvoorbeeld u eigen geproduceerde zonnestroom van uw zonnepanelen te koppelen aan de Warmtepompboiler.

• Dit houdt eigenlijk in dat de Warmtepompboiler alleen u eigen geproduceerde stroom verbruikt!

Efficiëntie 

• De installatie werkt zeer efficiënt. Alle toestellen van de serie behoren tot de momenteel hoogst mogelijke energierendementsklasse.

Additional information

Er is geen download beschikbaar.

Word zakelijke klant

Voor u een vraag, voor mij hopelijk een weet. Bel me gerust!

Belangrijkste kenmerken

Documentatie

Er is geen download beschikbaar.

Video's

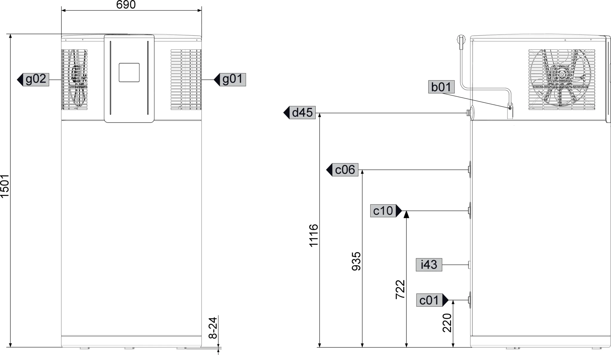
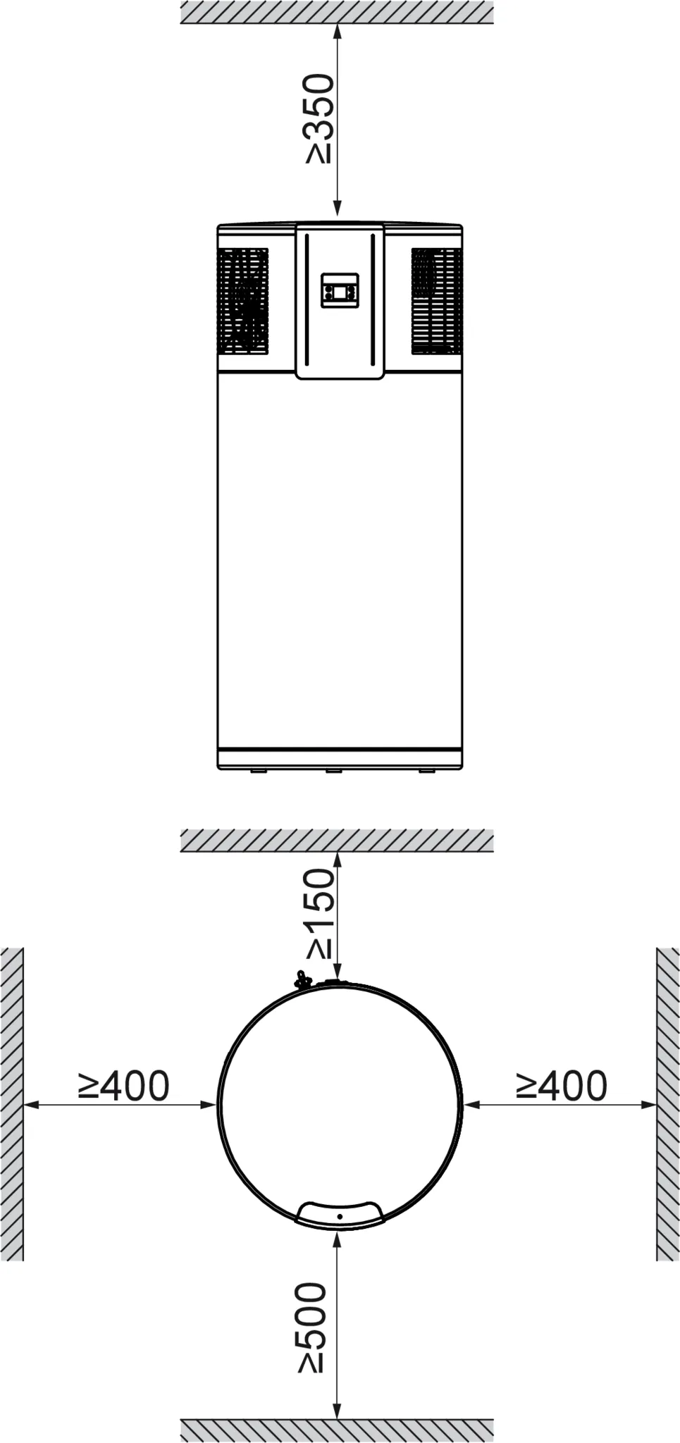
Specificaties

Additional information

Service 123Installatiematerialen

Vragen of dit product?

Dit zeggen onze klanten over ons

Maak het compleet

Via de ingebouwde contact ingang is het mogelijk bijvoorbeeld u eigen geproduceerde zonnestroom van uw zonnepanelen te koppelen aan de Warmtepompboiler.
231210


incl. btw

Op voorraad
Via de ingebouwde contact ingang is het mogelijk bijvoorbeeld u eigen geproduceerde zonnestroom van uw zonnepanelen te koppelen aan de Warmtepompboiler.
230950


incl. btw

Op voorraad
Via de ingebouwde contact ingang is het mogelijk bijvoorbeeld u eigen geproduceerde zonnestroom van uw zonnepanelen te koppelen aan de Warmtepompboiler.
233583


incl. btw

Op voorraad
Via de ingebouwde contact ingang is het mogelijk bijvoorbeeld u eigen geproduceerde zonnestroom van uw zonnepanelen te koppelen aan de Warmtepompboiler.
233584


incl. btw

Op voorraad

Zakelijke klant worden?

Naar de keuzehulp

Vind onze vestiging

Direct naar de route

Kennisbank

Vind antwoord op uw vragen

Alle categorieën

Zakelijke klant worden

Inloggen

Hoe kunnen wij jou helpen?

Alle categorieën

Hoe kunnen wij jou helpen?
0